Dodatkowe uszczelnienie w systemie drzwiowym STAR
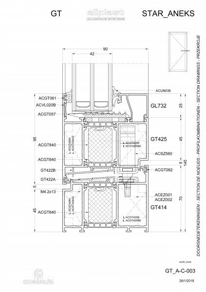
W celu poprawienie szczelności oraz izolacyjności termicznej w systemie Star (GT90) oraz Panel Door zaprojektowano dodatkowe uszczelnienia - między ramą drzwi a skrzydłem. Są to tworzywowe profile GT422A, GT422B, GT422C, GT422D ze zintegrowaną zaślepką maskującą wkręty mocujące oraz miękkimi koekstrudowanymi skrzydełkami dzielącymi przestrzeń na zamknięte komory. Zamontowane profile podnoszą również estetykę drzwi w obszarach widocznych po otworzeniu (uzyskano jednolitą czarną powierzchnię).
Wpisz numer telefonu, aby uzyskać kod sms umożliwiający dostęp do pliku
